
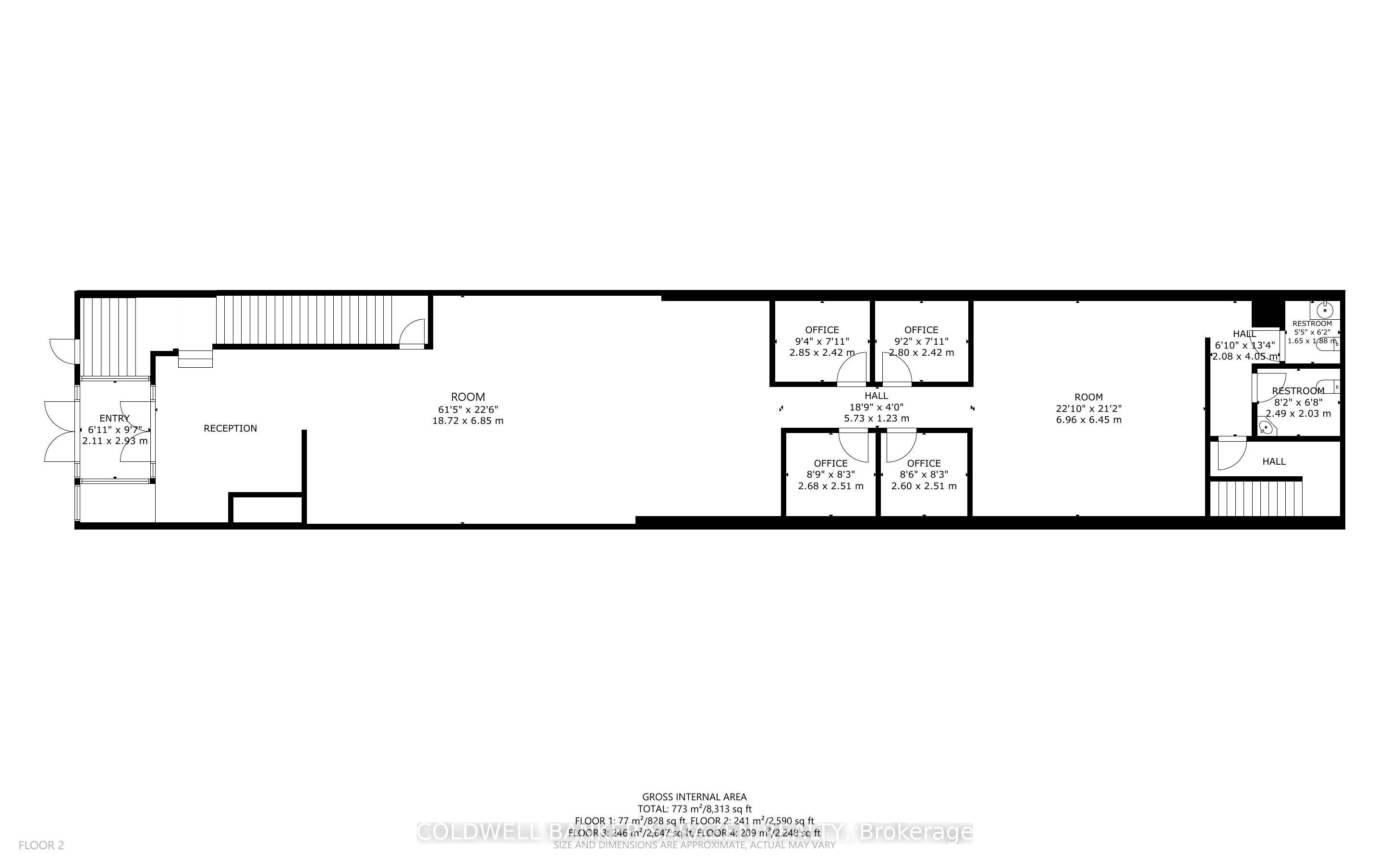
New ListingWelcome to 18 King Street West - Main Level, a bright and versatile approx. 2,500 sq. ft. commercial unit located in the heart of downtown Brockville.This open, well-maintained space offers excellent street exposure, high foot traffic, and flexible layout options - making it ideal for a wide range of uses such as professional offices, retail, wellness clinics, studios, or boutique services. Prominent storefront visibility along King Street West. Private entrance and large display windows. On-site parking (shared, up to 6 spaces for the building). Located just steps from the waterfront, restaurants, shops, and VIA Rail. C2 X2-1 zoning allows for a variety of commercial and service uses. Whether you're an established business or an entrepreneur ready to open your doors, this space combines prime location, charm, and functionality in one of Brockville's most vibrant areas.
| MLS # | X12510766 |
|---|---|
| Listing Type | For Lease |
| Status | New |
| Year | 0 |
| Days On Site | 4 |
| Listing Provided By | COLDWELL BANKER SARAZEN REALTY | X12510766 484801 |
| SQ Feet | 2,500 |
|---|---|
| Acreage | 0.06 |
| Cooling | Yes |
|---|
| Security Features | No |
|---|
| Utilities | Yes |
|---|
| Tax Annual Amount | 0 |
|---|---|
| Tax Type | Annual |
| Tax Year | 2025 |
| Province | ON |
|---|---|
| Region | Leeds and Grenville |
| City | Brockville |
| Postal Code | K6V 3P6 |
| Area | 810 Brockville |
| Province | ON |
|---|---|
| Region | Leeds and Grenville |
| City | Brockville |
| Postal Code | K6V 3P6 |
| Area | 810 Brockville |