
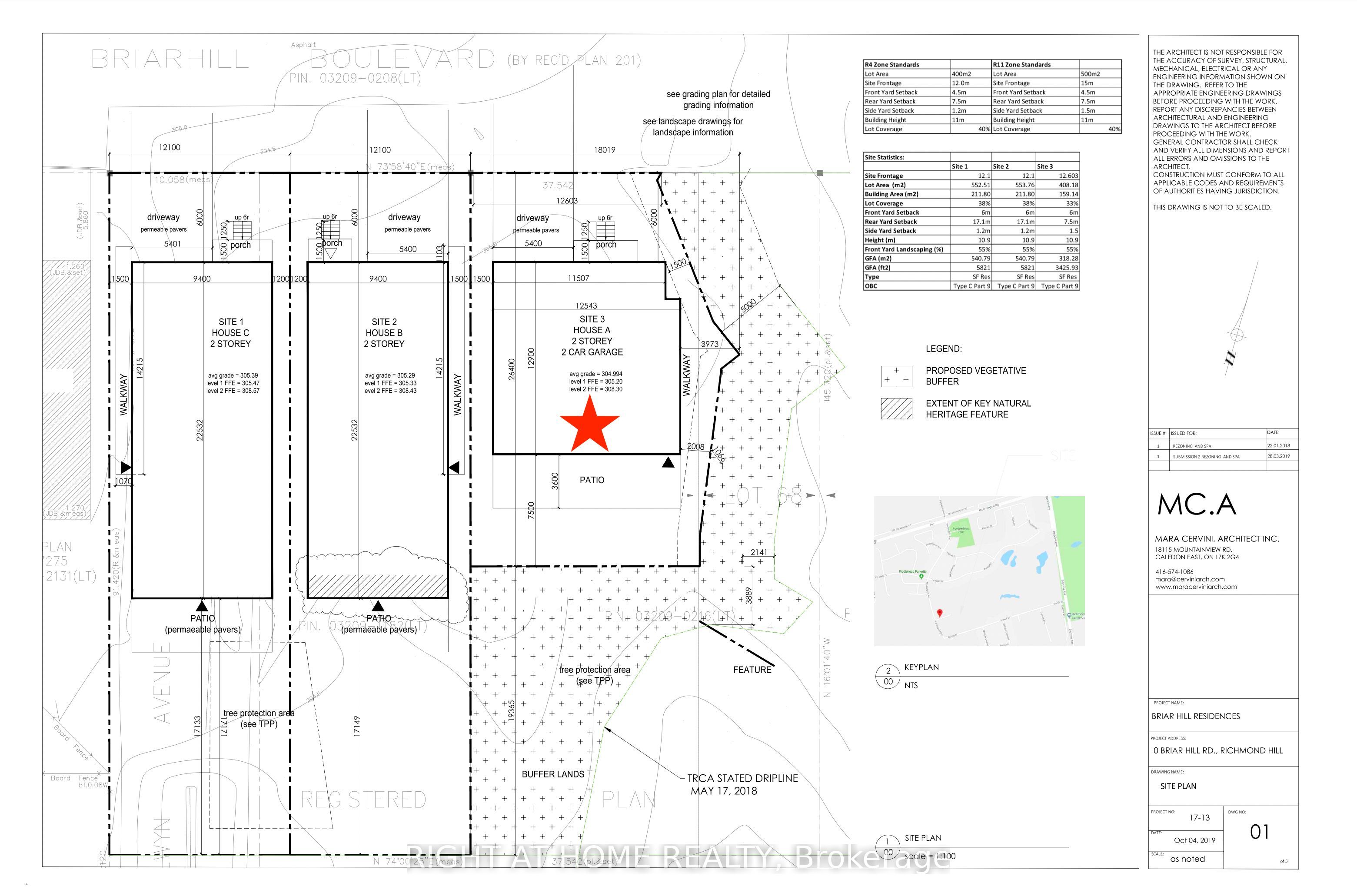
Ravine Building Lot for Sale - Lake Wilcox, Richmond Hill. Rare opportunity to build your custom home on a premium ravine lot in the prestigious Lake Wilcox community. !!! IRREGULAR SHAPED LOT !!! Spans up to 59 feet in one section. This fully serviced property is surrounded by luxury homes and backs onto mature trees and a natural ravine, offering exceptional privacy and a peaceful setting. All preliminary studies and municipal approvals have been completed, allowing for a streamlined building process with the potential to construct up to a 3,300 sq.ft ++ residence. VTB available!!! Perfectly located just steps from Lake Wilcox, scenic trails, and parks, this lot combines nature and convenience. Enjoy easy access to Highway 404, the GO Train, and nearby top-rated schools, shopping, and dining. An ideal opportunity for builders, investors, or end users to create a dream home in one of Richmond Hill's most desirable neighbourhoods.
| MLS # | N12466022 |
|---|---|
| Listing Type | For Sale |
| Sub-Type | Resale |
| Status | New |
| Year | 0 |
| Days On Site | 23 |
| Listing Provided By | RIGHT AT HOME REALTY | N12466022 062200 |
| Acreage | 0.08 |
|---|---|
| Water Front | None |
| Tax Annual Amount | 2000 |
|---|---|
| Tax Legal Description | PART LOTS 67 & 68 PLAN 201 WHITCHURCH, BEING PARTS 4 & 10 PLAN 65R39198 CITY OF RICHMOND HILL |
| Tax Year | 2024 |
| Province | ON |
|---|---|
| Region | York |
| City | Richmond Hill |
| Postal Code | L4E 4S3 |
| Area | Oak Ridges Lake Wilcox |
| Province | ON |
|---|---|
| Region | York |
| City | Richmond Hill |
| Postal Code | L4E 4S3 |
| Area | Oak Ridges Lake Wilcox |